Our website uses cookies that do not collect personal data.

Find out more

Accept and close

Bat and Ball Centre

Theis + Khan entered an RIBA International competition in May 2015 for the development of a new community facility on the site of the existing Bat & Ball community centre in Sevenoaks, Kent and won it. The new centre was to include Sevenoaks Town Council offices, a community hall and conference centre, a council chamber, a café and a nursery. The mixed use facilities were designed to enable conferences for up to 250 people to take place, weddings, community activities, and office use. The centre was to revolve around a circular public garden with a new direct connection to the adjacent Bat & Ball station, enabling passengers to access the London bound side of the station directly.

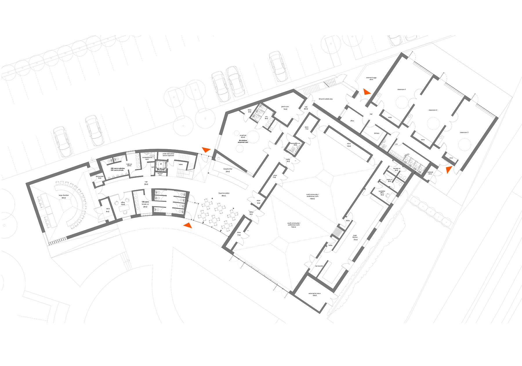
Following budget reconsiderations and an evolving brief, the project has now developed into the alteration and refurbishment of the existing community building, illustrated after the competition scheme below.

The competition design concept was a contemporary interpretation of a Kentish garden. The building took the form of a simple curved garden wall arranged around a circular garden with abstract vernacular forms that created a contemporary vernacular composition.

Similar juxtapositions of garden wall and building are seen at Sissinghurst Castle, Knole Park, Chartwell and Sevenoaks High Street and are typical of Kent. Our contextual approach created a new centre for Bat & Ball that inextricably linked it to Sevenoaks and to Kentish architecture whilst the familiar informality and garden setting created its own identity and sense of place.

The new Bat & Ball Centre will now be a redevelopment of the existing community building. The existing structure is to be retained, but the building external envelope will be overclad and insulated with all doors and windows replaced. Internally the building will be replanned and rationalised to reflect the latest brief and to meet or exceed current Building Regulations requirements. The interior will be completely refurbished throughout and the landscaping around the existing building will be refreshed.

Related projects