Our website uses cookies that do not collect personal data.

Find out more

Accept and close

Calouste Gulbenkian Foundation

The Calouste Gulbenkian arts and education Foundation made the decision to relocate their UK offices from a traditional Georgian terraced building in Regent’s Park to a contemporary office on the ground and first floors of an existing building in Hoxton Square, East London.

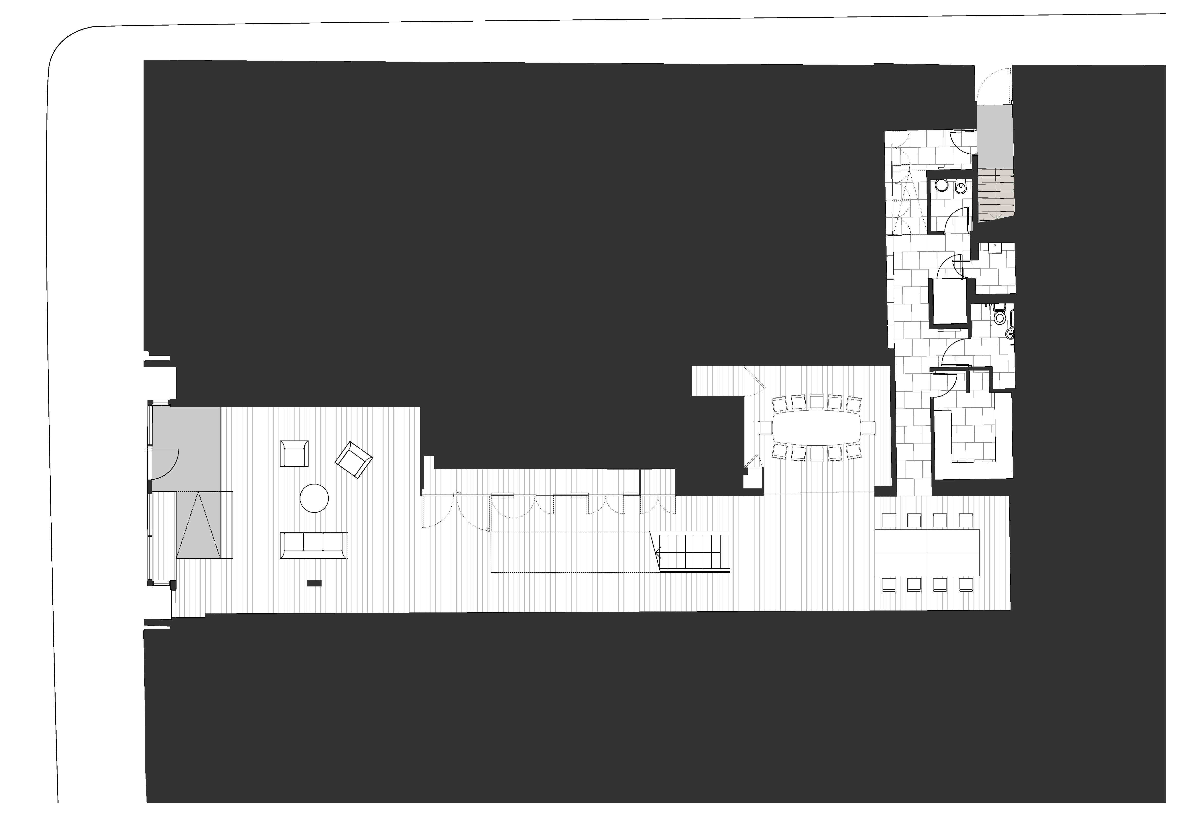
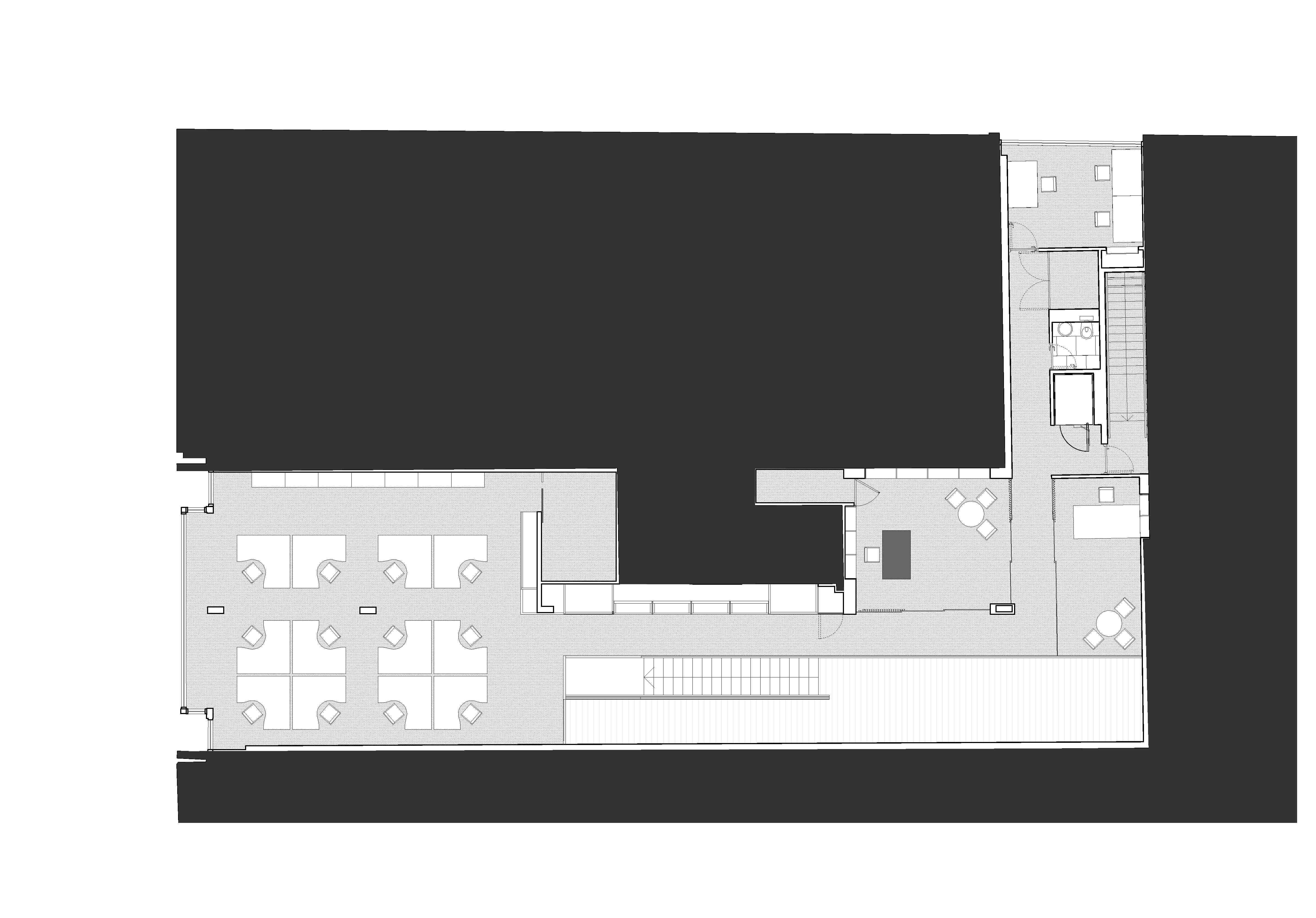
Within a gloomy speculative mixed use building in Hoxton Square, a dramatic intervention was made to the first floor slab to allow natural light from a new rooflight above to permeate into the ground floor. The large double-height ground floor space accommodates receptions that are an important part of CGF work and these include art exhibitions and installations. The offices are all at first floor within glass-partitioned spaces situated around an open gallery.

concept sketch

sectional perspective

ground floor plan

first floor plan

section

PRESS

2009 — Square On
2009 — Calouste Gulbenkian’s UK headquarters