Our website uses cookies that do not collect personal data.

Find out more

Accept and close

Newham house

Newham House was built in 1878 having been designed and occupied by the noted local architect John Thomas Newman FRIBA. It is a large, two-storey, detached house designed in an eclectic Queen Anne style with decorative influences from the Aesthetic Movement. The north elevation has a varied roof line with a deep coved eaves cornice, comprising from east to west a lucarne with hipped roof; a semi-conical roof over the angled two-storey entrance bay; and a broad hipped gable with deep eaves with bargeboards. A verandah was added to the rear of the house by 1920 and the single-storey conservatory to the south-west was given a tile roof sometime after 1939.

Our design concept is to create an extension that enhances the original house by retaining a significant portion of the original 1920s single storey pitched roof extension and verandah structures but introduces a contemporary link extension between them. The newly altered and refurbished structures, linked by a new single-storey contemporary kitchen and dining room extension, is set behind a new pergola structure that creates a continual visual rhythm of vertical posts around the house and garden. This gives the rear elevation and garden perimeter a coherent unity. The new extension will replace the existing conglomeration of structures added in an ad hoc way in the early 20th century. The flat roofs of the new extension and refurbished verandah will allow more of the original house rear elevation to be appreciated, currently obscured by low quality mono-pitch roofs. A new glazed roof to the verandah will allow more light into the rear rooms of the main house and the pergola in front of the new single storey extension will give some protection from direct sunlight in the summer.

Planning permission for the work was granted in spring 2020 and the technical design is currently underway.

The design and detailing of the new single-storey extension will be entirely contemporary with the materials and proportions complimenting the existing. The pitched roof single storey kitchen extension will be rebuilt within the existing brick structure with the pitched roof and external walls lined with new insulation to achieve the best U values possible. The remainder of the new kitchen/family room will be fully glazed with minimally framed full-height glazed sliding doors to contrast with the brickwork of the original house and to afford maximum views out. The external brick wall will be left exposed within the new kitchen extension so that the detailling can be seen. The proposals will enhance the original house and its setting and create a sustainable new extension that possesses a design integrity of its own, working seamlessly with the existing house.

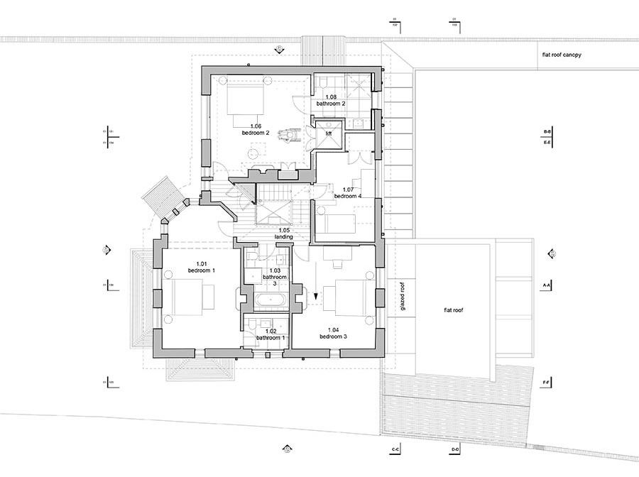
Internally the main interventions will be the installation of a new passenger lift to allow full accessibility to the daughter’s first floor bedroom and bathroom suite. A new opening within the existing lobby will need to be made to allow access to the lift. The carer’s suite will be enhanced to provide a small self-contained kitchen, shower room and bedsitting room within an area of the house that has already had significant alterations made. All other interiors will be restored where necessary with all original features retained and refurbished to match the original.

garden sketch

garden sketch

proposed ground floor

proposed first floor

south elevation

proposed section

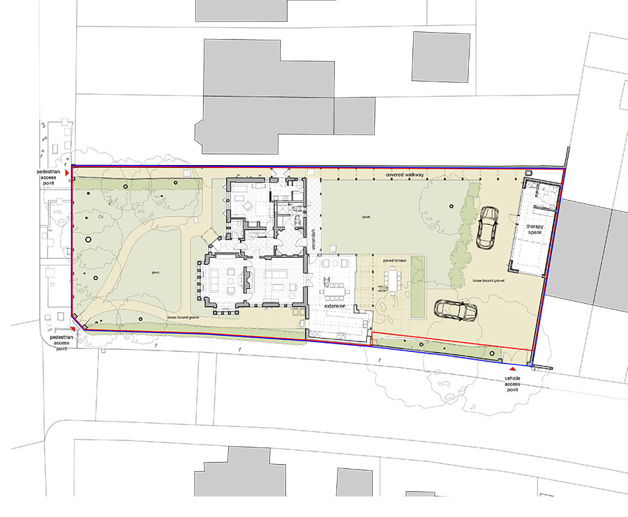
site plan