Our website uses cookies that do not collect personal data.

Find out more

Accept and close

Jay Mews

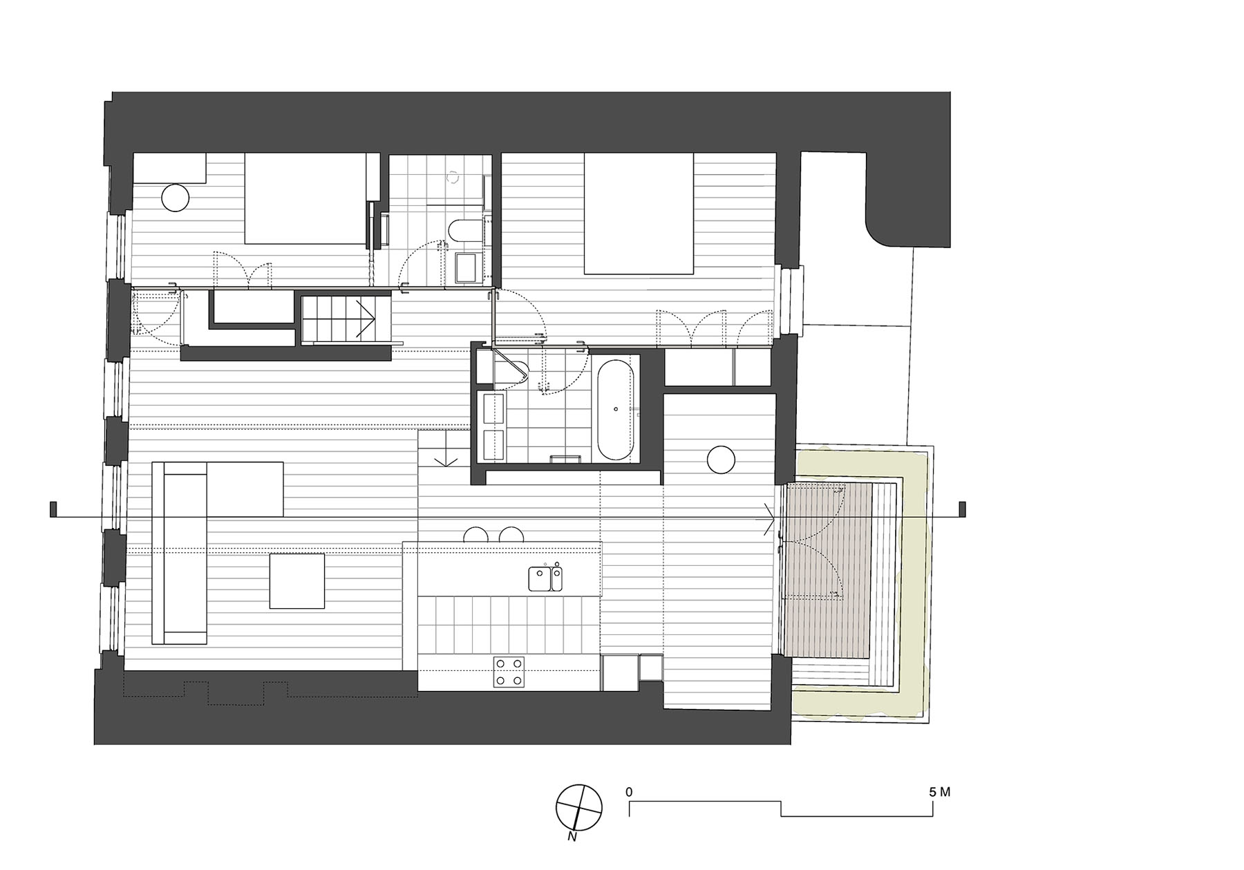
A first floor two-bedroomed flat within a mews house was altered and extended to create a generous and bright apartment with the living area opened to the roof structure. It was extended to the rear with the addition of a new terrace. A palette of oak finished doors and floors, white walls, dark Jura limestone bathrooms created a homogeneous interior creating a dramatic sense of space within a constricted floor plate.

The stairs up from the ground floor front door were too steep to meet current regulations and the front door had to open outward because there was no landing space so they had to be rebuilt. This involved negotiations with the RCA estates management who owned the offices below. The structural alterations that allowed the ceilings to be taken down were complex but were essential to the design. Lighting was integrated within the beams to create a sense of space and light at all times of the day.

AWARDS

AJ Small Projects — 2012 Shortlisted

interior sketch

floor plan

section

site plan

Related projects